Bancali Villa Indipendente In vetrina Report
S.P. 18 Sassari Argentiera, Sassari, 07100, Sardegna, SassariIn vendita €235.000
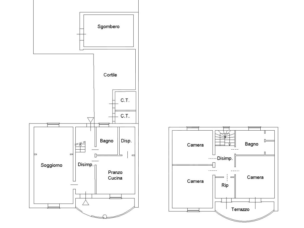
Sassari, lungo la Strada Provinciale Sassari–Argentiera, situata a Bancali in posizione tranquilla e ben collegata, a pochi chilometri dalla città di Sassari, la Vanacore Immobiliare propone in vendita villa indipendente di circa 210 mq distribuita su due livelli.
L’abitazione è costruita con solide fondamenta e murature a doppio strato. La casa si presenta in buone condizioni generali, ed è dotata di impianto di riscaldamento a gasolio.
Al piano terra si trovano un ampio e luminoso salone, una grande cucina abitabile con cucinotto separato, un bagno e un corridoio con scala in legno che conduce al piano superiore.
Il primo piano ospita la zona notte composta da tre grandi camere da letto, un ampio bagno e un piccolo studio. La camera padronale e lo studio hanno accesso ad un piccolo balcone con affaccio sull’ingresso della proprietà.
All’esterno la casa è circondata da spazi ampi e curati. Nella parte anteriore si trova una piccola porzione di giardino con alberi da frutto e diverse piante. Nella parte posteriore è presente una grande area con caminetto esterno, oltre a locale caldaia, ripostiglio, cantina, posto auto e ulteriore porzione di terreno con alberi.
La proprietà dispone inoltre di pozzo privato per l’approvvigionamento idrico e fossa settica.
La Classe Energetica assegnata è in Classe G.
Informazioni sull'immobile
- Dettagli
- Stato Immobile : Da ristrutturare
- Tipo Proprietà : Intera Proprietà
- Piano dell'immobile : T - 1
- Cucina : Abitabile
- Riscaldamento : Autonomo
- Balcone : Si
- Giardino : Si, Privato
- Cortile : Si, privato
- Classe Energetica : G






















































