Via dei Mille Locale Commerciale In vetrina Report
Via dei Mille, Sassari, 07100, Sardegna , SassariIn affitto €3.300,00
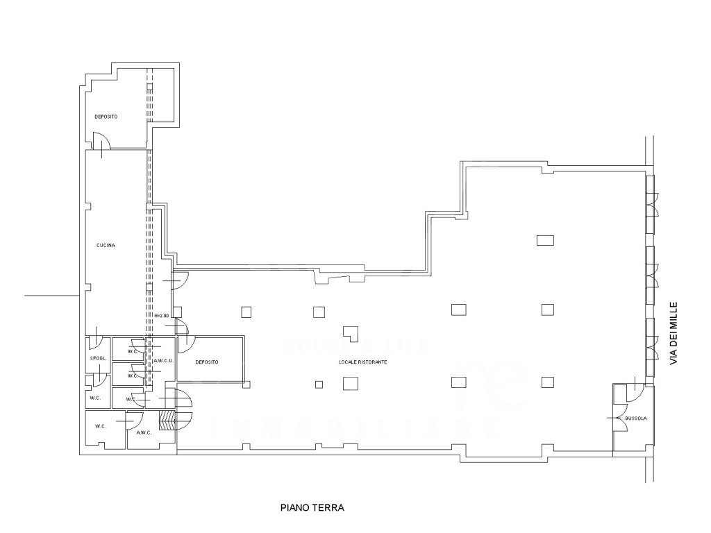
Sassari, Via dei Mille, in una zona centrale caratterizzata da forte passaggio sia pedonale che veicolare, la Vanacore Immobiliare propone in affitto un ampio locale commerciale di 340 mq . L’immobile, precedentemente adibito a ristorante, si presenta in buone condizioni e offre una disposizione interna funzionale e versatile, perfetta per attività del settore ristorativo o commerciale.
All’ingresso si apre un grande ambiente in pianta aperta, luminoso e accogliente, ideale per ospitare la sala dedicata ai coperti o per essere adattato secondo le specifiche esigenze del nuovo conduttore. La cucina, spaziosa e ben organizzata, è affiancata da due locali accessori utilizzabili come deposito, spogliatoio e bagno riservato al personale, garantendo così la piena operatività del locale. La zona servizi è completa e ben strutturata, con due ampi bagni destinati alla clientela: uno dei quali conforme alle normative per persone con disabilità, mentre l’altro dispone di antibagno e tre WC separati.
La presenza di quattro ampie vetrine fronte strada conferisce all’immobile una grande visibilità e lo rende particolarmente attrattivo per chi desidera un’attività in una posizione di prestigio e facilmente accessibile. Questo locale rappresenta un’interessante opportunità per chi è alla ricerca di uno spazio ampio, centrale e già predisposto per accogliere il pubblico.
Informazioni sull'immobile
- Dettagli
- Stato Immobile : Buono/Abitabile
- Tipo Proprietà : Intera Proprietà
- Condominio : Si
- Piano dell'immobile : T
- Cucina : Si
























