In vendita €265.000
Sassari, Viale Italia, la Vanacore Immobiliare propone in vendita un elegante appartamento situato al primo piano di una piccola palazzina priva di ascensore, inserito in un contesto estremamente centrale e servito, a pochi passi da ospedali, università, attività commerciali e principali servizi.
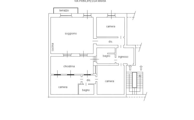
L’immobile, recentemente e finemente ristrutturato, si sviluppa su una metratura di 135mq. in ottime condizioni interne ed è pronto per essere abitato senza necessità di interventi.
L’ingresso conduce a un comodo disimpegno che si apre su una spaziosa e luminosa zona giorno, caratterizzata da un ambiente accogliente e ben organizzato, suddiviso in zona relax e zona pranzo. La cucina a vista, impreziosita da un’elegante isola centrale, si integra perfettamente con lo spazio. Questa zona giorno gode di un’ottima luminosità grazie all’uscita su un pratico balconcino e alla presenza di due finestre che si affacciano sul pozzo luce interno, garantendone la luce.
La zona notte si sviluppa in camera padronale di generose dimensioni, dalla quale, tramite un piccolo disimpegno, si accede a un bagno dedicato e a un ulteriore stanza finestrata perfetta come cameretta, studio o spaziosa cabina armadio.
Completano la proprietà un ulteriore camera da letto ampia e il bagno principale, moderno e dotato di box doccia.
Il riscaldamento è autonomo con pompe di calore caldo/freddo, installate in ogni ambiente.
La Classe Energetica assegnata è in fascia G.
Informazioni sull'immobile
- Dettagli
- Stato Immobile : Ottimo/Ristrutturato
- Tipo Proprietà : Intera Proprietà
- Condominio : Si
- Piano dell'immobile : 1
- Ascensore : No
- Cucina : Angolo Cottura
- Riscaldamento : Autonomo
- Pompa di Calore : Aria Fredda e Calda
- Balcone : Si
- Classe Energetica : G
Quartiere
- Centro: 5 Minuti Con A piedi
- Ospedale: 5 Minuti Con A piedi
- Caffetteria Bar: 1 Minuti Con A piedi
- Cinema: 10 Minuti Con A piedi
- Scuola: 5 Minuti Con A piedi
- Università: 5 Minuti Con A piedi
- Supermercato: 10 Minuti Con A piedi












































