In vendita €129.000
Sassari, Via Castelsardo, nei pressi della Questura e dello Stadio dei Pini, la Vanacore Immobiliare propone in vendita un grazioso appartamento situato al piano terra di uno stabile di recente costruzione, servito da ascensore. La zona è ben collegata e offre ogni tipo di servizio, garantendo comodità e praticità.
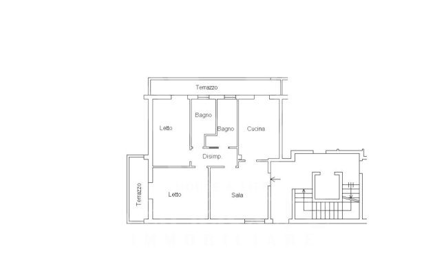
L’abitazione si estende su una superficie di 85 mq, l’ingresso è diretto sul soggiorno a cui segue la cucina separata ed abitabile, che dispone di una uscita su un comodo balcone, a servizio della cucina, che si sviluppa in lunghezza e sul quale si affacciano vari ambienti.
Proseguendo tramite un piccolo disimpegno si trova la zona notte, che ospita una spaziosa camera matrimoniale con accesso esclusivo ad un comodo spazio esterno sfruttabile, una seconda stanza più contenuta condivide l’uscita sul balcone con la cucina. Completano due bagni finestrati e totalmente accessoriati uno con vasca da bagno e uno con box doccia.
Il riscaldamento è di tipo autonomo con radiatori presenti in ogni ambiente alimentati da una caldaia col gas di città, più una pompa di calore caldo/freddo installata nella camera matrimoniale.
Completa l’offerta immobiliare, una comoda cantina di 9mq. Al piano S2 dello stabile con accesso direttamente dall’interno del vano scale con ascensore.
E’ inoltre possibile acquistare separatamente, con prezzo da concordare, un box privato di 16mq. dotato di luce elettrica, anche questo situato al piano S2 dello stesso stabile, facilmente raggiungibile tramite ascensore e dall’esterno con cancello elettrico fronte strada.
La Classe Energetica assegnata è in fascia B.
Informazioni sull'immobile
- Dettagli
- Stato Immobile : Buono/Abitabile
- Tipo Proprietà : Intera Proprietà
- Condominio : Si
- Piano dell'immobile : T
- Ascensore : Si
- Cucina : Abitabile
- Riscaldamento : Autonomo
- Pompa di Calore : Aria Fredda e Calda
- Balcone : Si
- Parcheggio : Possibilità box.
- Cantina : Si
- Classe Energetica : B

















































