In vendita €235.000
Sassari, Via Copenaghen, in posizione strategica e servitissima, nelle immediate vicinanze degli ospedali e delle principali facoltà universitarie, la Vanacore Immobiliare propone in vendita un ampio appartamento di 125 mq. situato al quinto piano di una palazzina in buono stato, servita da ascensore.
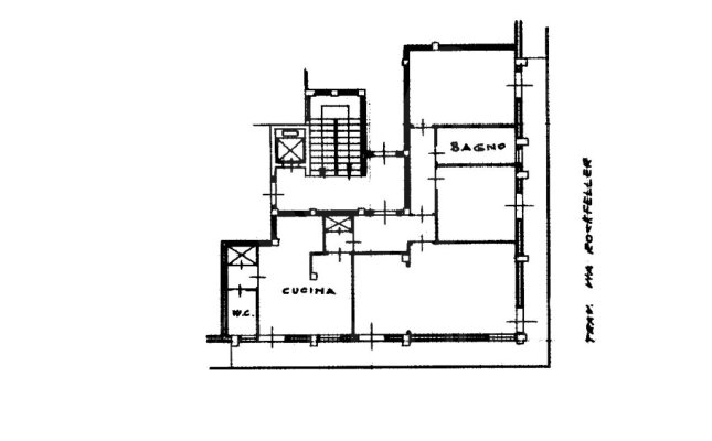
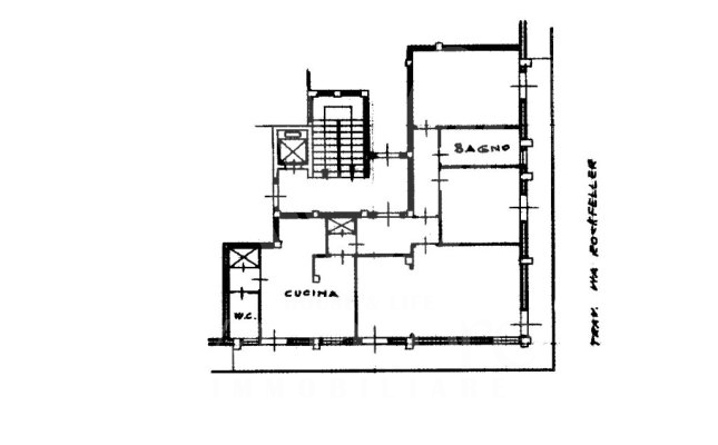
L’immobile si presenta in buone condizioni abitative ed è subito pronto da abitare. L’ingresso conduce a una luminosa zona giorno suddivisa in due ambienti: un’ampia area relax con uscita sul balcone e una zona pranzo/cena, anch’essa con accesso diretto all’esterno.
Il balcone perimetrale che circonda l’intero appartamento garantisce un’ottima luminosità e fruibilità degli spazi; la sala, la cucina ed entrambe le camere dispongono di uno sbocco all’esterno.
La cucina è spaziosa e abitabile, dotata di cucinotto più riservato, una comoda dispensa attrezzata e un pratico doppio servizio/lavanderia.
La zona notte comprende una camera matrimoniale di generose dimensioni, una seconda camera e un bagno completo di vasca e box doccia.
Il riscaldamento è centralizzato con radiatori nuovi in alluminio in ogni ambiente.
Qualora vi sia la necessità di ulteriori spazi, il soggiorno si presta ad essere diviso per la realizzazione di una terza camera/studio, non rinunciando comunque ad una sala spaziosa.
La Classe Energetica assegnata è in fascia E.
Completa la proprietà una cantina di pertinenza di 12 mq, situata al piano S1 dello stabile.
Informazioni sull'immobile
- Dettagli
- Stato Immobile : Buono/Abitabile
- Tipo Proprietà : Intera Proprietà
- Condominio : Si
- Piano dell'immobile : 5
- Ascensore : Si
- Cucina : Abitabile
- Riscaldamento : Centralizzato
- Balcone : Si
- Cantina : Si
- Classe Energetica : E
Quartiere
- Supermercato: 1 Minuti Con A piedi
- Università: 5 Minuti Con A piedi
- Cinema: 10 Minuti Con A piedi
- Caffetteria Bar: 2 Minuti Con A piedi
- Ospedale: 5 Minuti Con A piedi
- Centro: 10 Minuti Con A piedi












































